Ваша информация
Overview
- Обновление на:
- 12 февраля, 2026
- 4 Спальни
- 4 Ванные комнаты
- Гараж 2 машины
Description
Дом на продажу или аренду в Пинки, Салиена рядом с King’s College. Дома Виллы в Пинки, Салиена на аренду или продажу. Дома находятся рядом с Jurmala golf club, King’s College и в 450 метрах от школы Exupery и Jurmala Outlet Village. International school of Latvia находится в 12 минутах ходьбы.
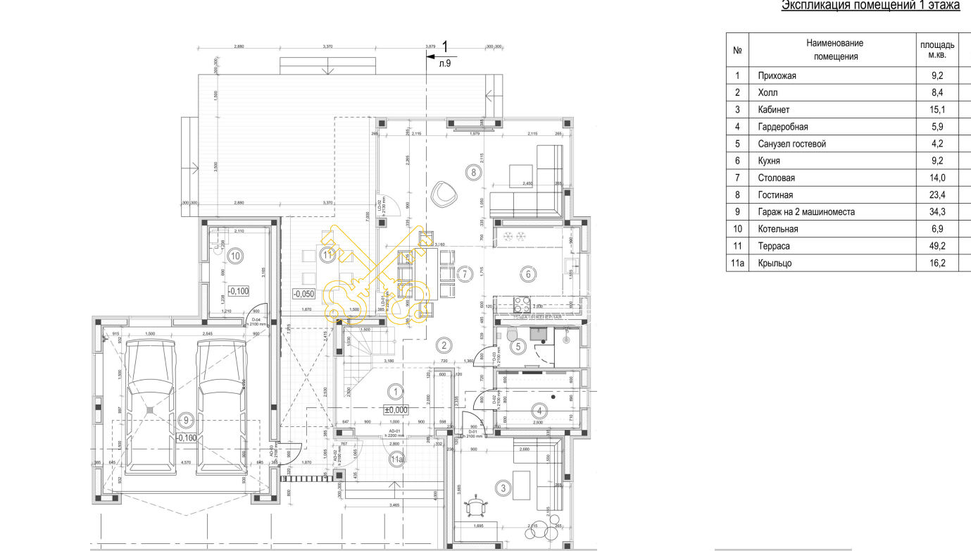
5 комнат /250м2
4 Спальни
4 Санузла
250м2 отапливаемая площадь каждого дома и 100м2 терасс и балконов
Гараж на 2 машины
Возможно аренда с правом выкупа.
Арендуя дом НДС оплачивается дополнительно к цене аренды по ставке 21% (кроме посольств, имеющих освобождение от НДС)
Коммунальные платежи – 95eur расходы управляющей компании поселка + электричество, водоснабжение, газ по счетчикам
Страховой депозит – 2 месяца
Оплата аренды – помесячно авансом на счет компании
Просторная Гостиная с выходом на Террасу, Столовая,
полностью оборудованная кухня, 2 Гардеробных, гостевой Санузел и Кабинет/или 4ая Спальня, гараж на 2 автомашины, техническое помещение котельной.
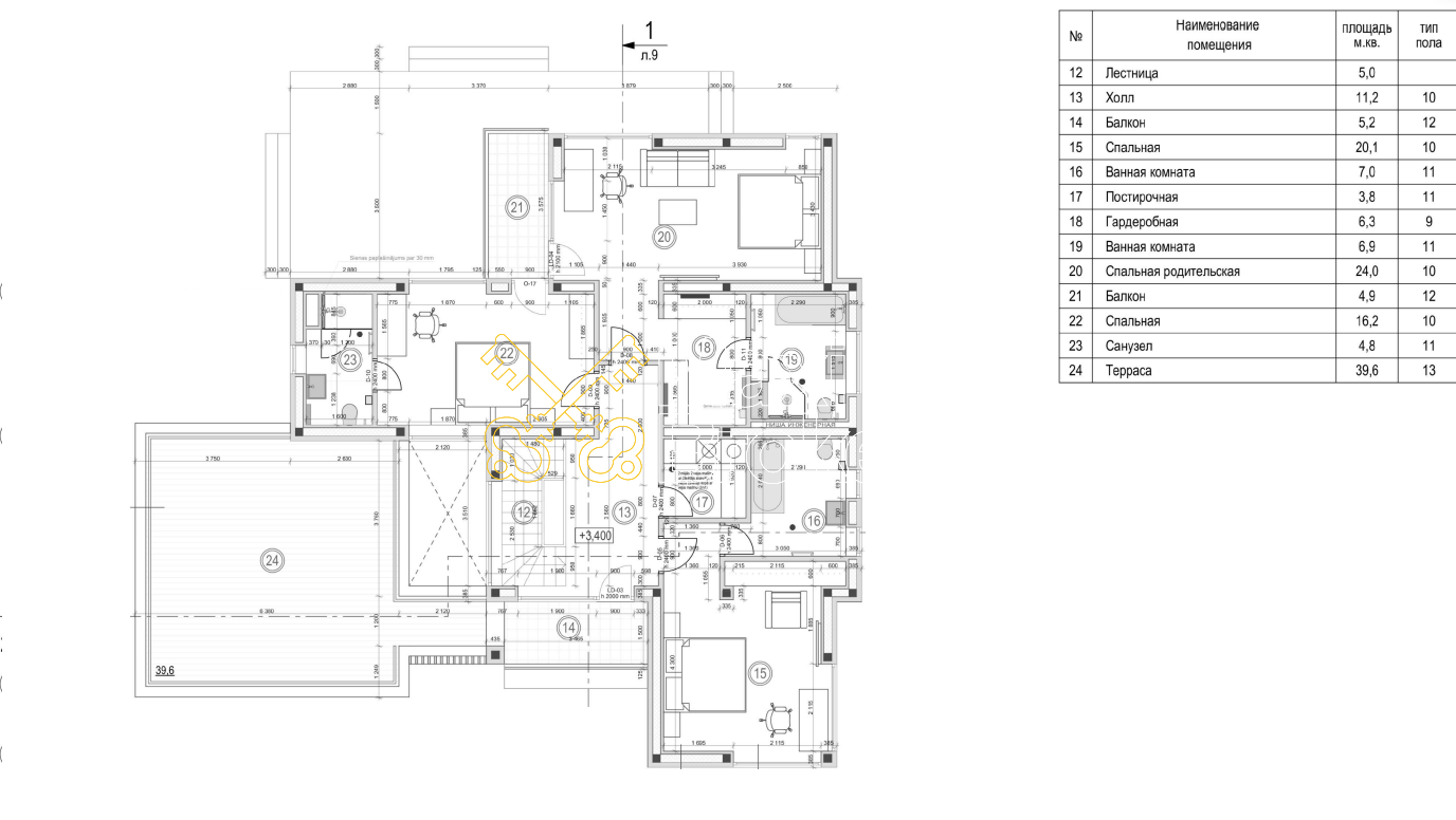
На втором этаже — 3 Изолированных Спальни, каждая с Гардеробной и своим Санузлом.
Высокие потолки, панорамное остекление, солнечные террасы
и светлые тона отделочных материалов дарят Вам много солнца и дневного света,
ощущение простора и легкости.
Передовые инженерные решения с энергосбережением
— Все дома имеют высший класс энергосбережения и энергосертификаты
— Отопление дома осуществляется теплыми полами – в котельной дома установлены
газовый котел и тепловой насос, которые позволяют отапливать дом в наиболее экономичном режиме
— Во всех помещениях установлена приточно-вытяжная вентиляция с рекуперацией тепла
— Во всех помещениях установлено кондиционирование
В Салиена, Пинки ваши соседи будут дипломатами и лидерами западноевропейских компаний.
+ Городская вода и канализация
+ Охрана и видеонаблюдение 24/7
У всех жителей Салиены есть карты, которые всегда открывают благоустроенные частные зоны отдыха:
-Салиена Парк
-Лесопарк
-Детская игровая площадка на улице Балта
-Фруктовый парк Saliena Augļudārzs
Юрмала 5мин, 10мин RIX, поле для гольфа на соседней территории, рядом ледовой холл Inbox Halle и несколько ресторанов.
О времени просмотра или если у Вас есть вопросы по поселку —> не стесняйтесь звонить или писать на Whatsapp.
Закрытые предложения на нашем телеграм канале -> нажать t.me/maxibrokers







































































































