Overview
- Обновление на:
- 16 июля, 2025
- 3 Спальни
- 2 Ванные комнаты
Description
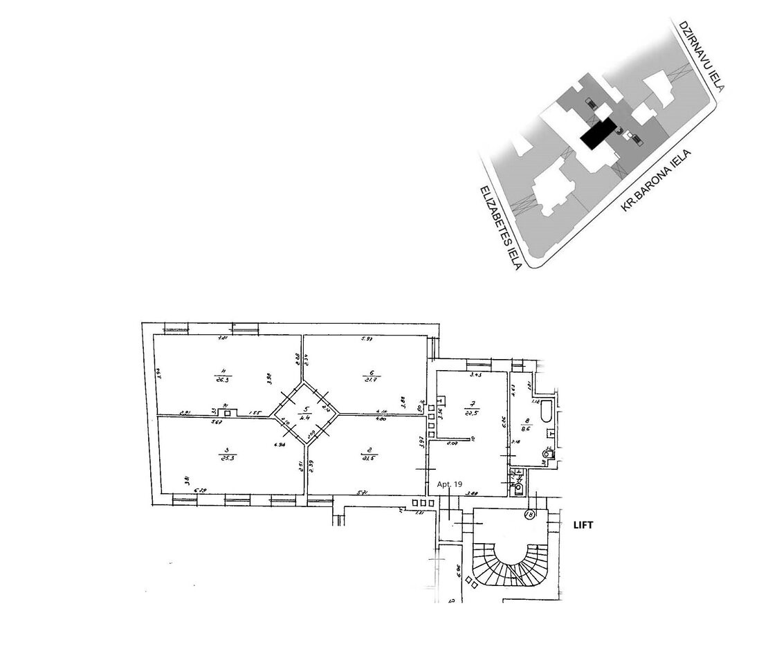
Сдается прекрасная недавно отремонтированная большая 4-комнатная квартира в центре Риги в тихом здании с внутренним двориком, где много света. В здании есть собственный Тренажерный зал и Сауна, которыми жители этой квартиры могут пользоваться бесплатно, а также круглосуточная охрана на территории. Здание расположено в самом центре Риги, рядом с трамвайной остановкой, многочисленными кафе, ресторанами и магазинами. Квартира расположена на втором этаже с лифтом. Эта просторная квартира идеально подходит для семьи или 2-3 студентов. В квартире есть отдельная кухня с бытовой техникой, просторная гостиная, 3 большие Спальни, 2 Ванные комнаты, а также стиральная машина и сушилка. Ответственное и надежное профессиональное управление недвижимостью.
Квартира предлагается без мебели, однако мебель может быть предоставлена за дополнительные 70 евро в месяц.
АРЕНДА: 1150 евро в месяц (НДС не взимается с частных лиц).
ДОПОЛНИТЕЛЬНЫЕ ПЛАТЕЖИ:
налог на недвижимость — 88 евро в месяц (НДС не взимается с частных лиц).
коммунальные услуги в среднем в неотопительный сезон — 80 евро в месяц с учетом НДС.
коммунальные услуги в среднем в отопительный сезон — 330 евро в месяц с учетом НДС.
управление недвижимостью и охрана включены в арендную плату.
ЗАЛОГ: 1150 евро
МИНИМАЛЬНЫЙ СРОК АРЕНДЫ: изначально 12 месяцев.










































